Pick Up Box - Accessory Installation Guidelines
87ford12
PICK-UP BOX ACCESSORY EQUIPMENT Article No.
INSTALLATION GUIDELINES 87-1-18
LIGHT TRUCK 1980-87 F SERIES
ISSUE: Pick-up box accessory equipment installation for F Series vehicles.
ACTION: This article is being republished in its entirety to update the model year application and service procedures which follow.
Figure 10:

Toolbox Installations
There are three basic types of toolbox installations which are widely used in pick-up boxes. These are the cross-body saddle-type toolbox, the freestanding floor-mounted toolbox, and longitudinallymounted contractors toolbox (Figure 10). In severe or off-road (4x4) applications, the floor-mounted toolbox is preferable to the saddle-type or contractors toolbox in avoiding sheet metal cracking concerns. The following installation guidelines are recommended for these three major types of toolboxes.
Figure 11:

Floor-Mounted Toolbox
This type of toolbox is preferred in severe usage applications since it is supported directly by the pick-up box load floor. Figure 11 illustrates the recommended method of installing this toolbox. A piece of plywood (3/4 inch thick) should be placed under the toolbox to distribute loads evenly to the load floor and supporting structure. This toolbox should be nested against the pick-up box headboard but not mounted to it. Secure the toolbox to the load floor with two bolts (at least 1/2 inch diameter) at the longitudinal centerline of the toolbox (Figure 11). These bolts should be positioned fore/aft as far apart as possible. These mounting bolts should extend through the pick-up box load floor and be secured with nuts and lock washers backed-up by washers and plywood bearing plates (Figure 11).
Cross-Body Saddle-Type Toolbox
This type of toolbox is very popular but not the best for severe and off-road (4x4) applications since its weight is not supported by the load floor and its mounting location eliminates the use of the RPO inbox spare tire carrier. If availability, or load floor space constraints require that this type of toolbox be used in severe loading applications, the following installation guidelines should be used.
Figure 12:

Figure 13:

Figure 14:

Figure 15:

Figure 16:

For vehicles without angle section rail and headboard protectors installed, the "L" brackets described in TSB Article No. 80-22-16 (Figures 12 and 13) should be installed prior to mounting the saddle-type toolbox. After these reinforcing "L" brackets are installed, the toolbox should be mounted to the pick-up box rails with 2-3/8 inch diameter bolts as shown in Figure 13. It is very important that these mounting bolts be "centered" in the bodyside inner panel support depressions as indicated in Figures 14, 15, and 16. For vehicles with angle section rail protectors installed, the cross-body saddle-type toolbox should be secured to the rail protector only, not through pick-up box side.
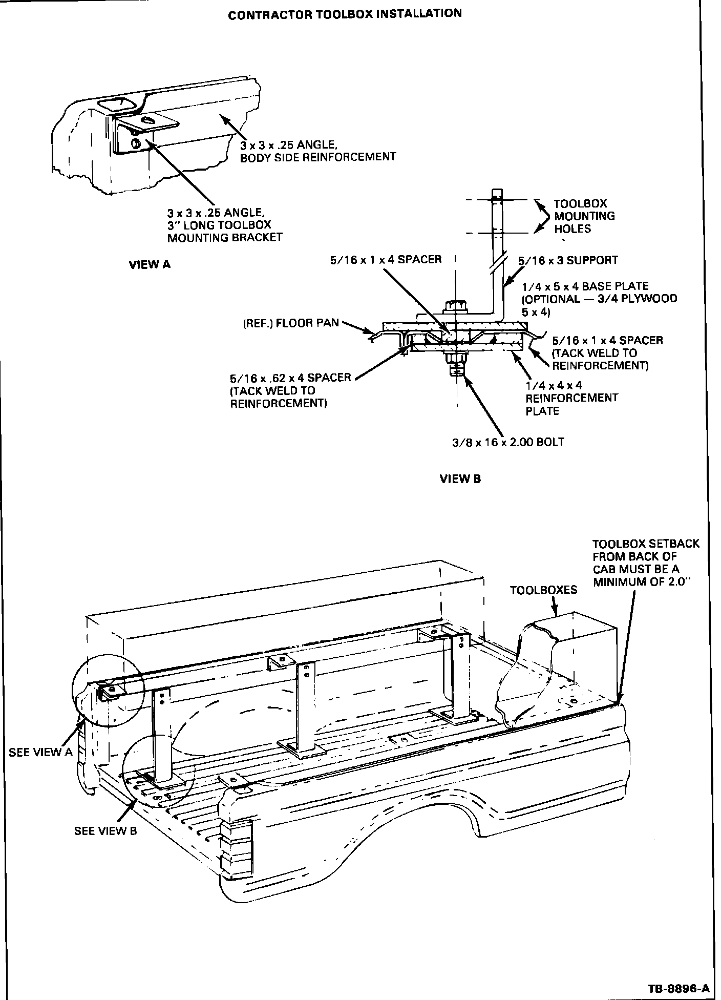
Contractor Toolbox
This type of toolbox is not recommended for use in severe, off-road (4x4) applications. However, if availability, accessibility, or storage space requirements dictate that contractor-type toolboxes must be used, the following installation guidelines should be applied:
Figure 20:

Figure 21:

^ Install angle section rail protectors as indicated in Figures 20 and 21 and the section entitled "Angle Section Rail Protectors Installation". This angle section provides a flat surface for the contractor's box to rest upon. It is essential that this angle section be installed as indicated to compensate for the side view "crown" of the top rail of the 1980-87 pick-up box.
Figure 13:

Figure 17:

Figure 18:

^ Mount the contractor's toolbox to the angle section rail protector only, not to box sides. A suggested method of attachment is shown in Figures 17 and 18.
^ If the contractor's toolbox extends inboard more than three inches from the inboard side of the pick-up box top rail it should be supported by at least three vertical struts from the floor to the inboard side of the contractor's toolbox. This type of additional support is illustrated in Figure
13. The contractor's toolbox should never be cantilevered inboard off of the pick-up box top rail using corner-type gussets only (Figure 18).
Figure 19:

Figure 20:

Figure 21:

Angle Section Rail Protector Installation
Some severe usage vehicle operators install angle section rail protectors on the top of the pick-up box side rails and headboard to prevent damage from heavy falling objects and to serve as a mounting platform for toolboxes, "headache" racks, etc. These angle section rail protectors should be installed as indicated in Figures 20 and 21. There are several key features to this installation which must be followed:
^ Bolting the angle section through the inboard surface of the pick-up box top side rail and "shimming" the front and rear ends of the rail protector as shown in Figures 20 and 21 are mandatory. If the angle section rail protector or any rigid flat member is bolted along the length of the top surface of the pick-up box rails, serious permanent deformation and fatigue cracking will probably occur. This will result from the rigid flat member trying to "flatten" the side view "crown" and the "racetrack" offset in the 1980-87 pick-up box top rails. Figure 19 illustrates this side view "crown" and "racetrack" offset unique to the top rail surface of the 1980-87 F Series pick-up boxes.
^ The angle section across the headboard must always be used with the side rail protectors. It must be rigidly welded to the side rail protector angle sections and bolted to the headboard as indicated in Figures 20 and 21.
^ The side rail protector angle sections should extend the entire length of the pick-up box and be bolted to the rear pillars as shown in Figures 20 and 21.
Figure 20:

Figure 21:

Figure 22:

"Headache" Rack Installation
Some of the severe usage vehicle operators install "headache" racks on the front of their pick-up boxes to prevent damage to the rear of the cab and backlite due to shifting or misloaded cargo. It is recommended that the angle section rail protector installation previously described and illustrated in Figures 20 and 21 serve as the mounting platform for these "headache" rack installations. Figure 22 illustrates the suggested "headache" rack installation. It is recommended that the perimeter member, supporting gusset members, and any intermediate cross braces for the "headache" rack be fabricated from open section structural members (angle or flat stock). Use of closed section tubular structural members in these "headache" racks is to
be avoided. At least two inches static clearance should be maintained between the leading edge of the "headache" rack and the back of the cab.
Figure 23:

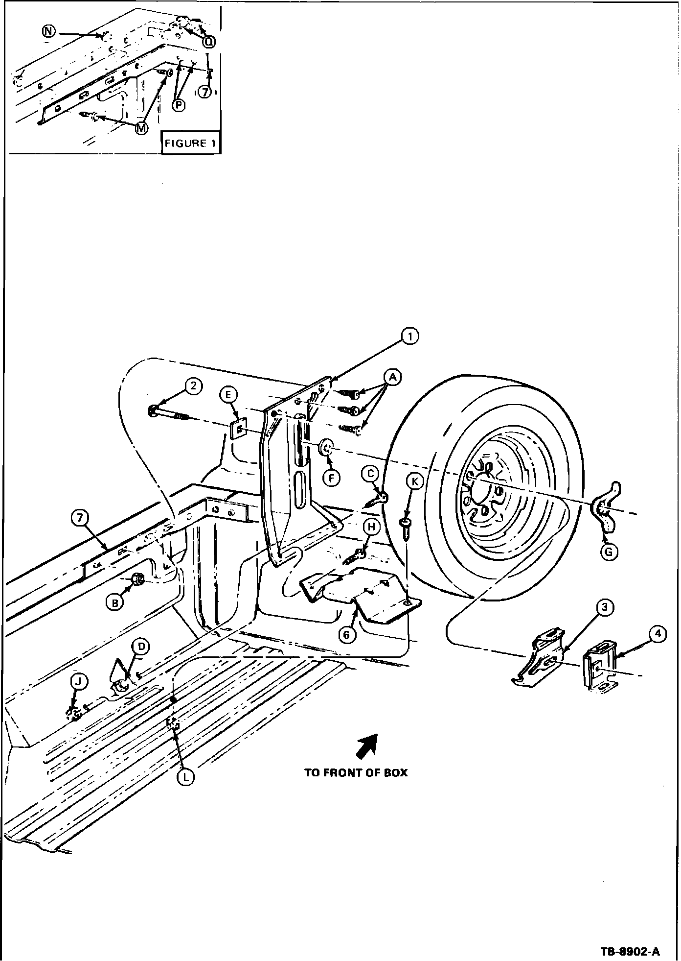
In-Box Spare Tire Carrier
Many severe usage vehicle operators have in-box spare tire stowage due to the specification of dual fuel tanks (necessitates in-box mounting) or the desire for increased off-road ground clearance and accessibility. Light Truck Engineering recommends the use of the RPO in-box spare tire carrier (Figure 23). This carrier installation includes all of the required mounting hardware and pick-up box reinforcements. It has been thoroughly tested and verified on the severe Ford Arizona Proving Grounds durability route.
Figure 24:

Figure 25:

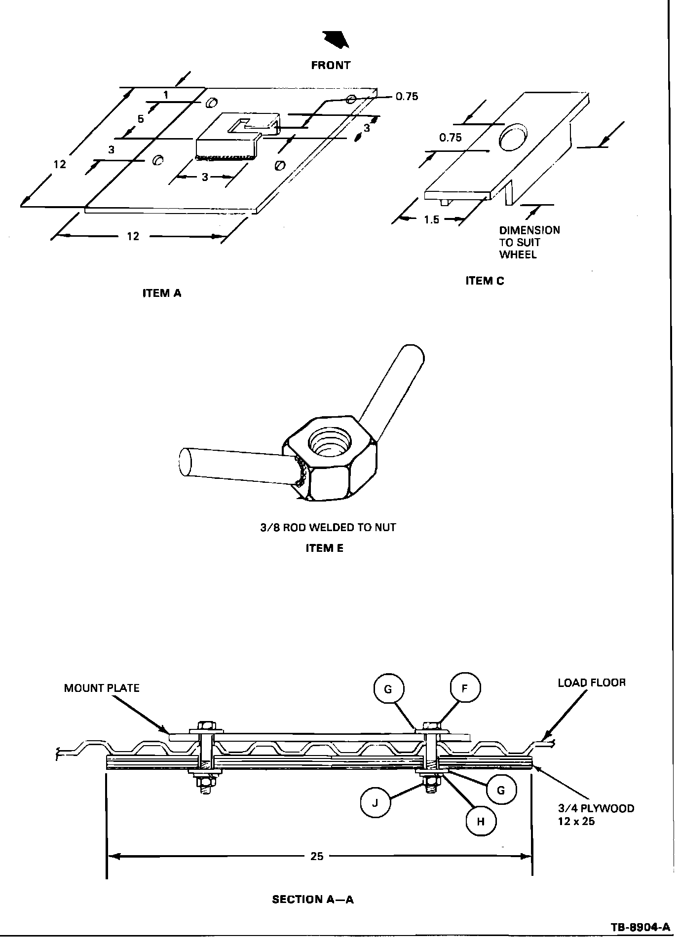
If the RPO in-box spare tire carrier cannot be used due to interference with other equipment or toolbox installations, it is recommended that the spare tire be stowed flat on the load floor. A suggested flat stowage installation is shown in Figures 24 and 25. Variations of this same basic flat floor stowage design should be acceptable if sufficient load floor bearing area is provided for the tie-down attachment to the floor.
Figure 26:

Figure 27:

Figure 28:

If the spare tire must be stowed upright in the pickup box and the RPO in-box spare tire carrier cannot be used, then a free-standing floor-mounted spare tire carrier is recommended. A suggested design of this type of spare tire carrier is shown in Figures 26, 27, and 28. The spare tire should never be mounted to the pick-up box sides. Installation of the spare tire to the pick-up box sides will typically cause body side outer/inner panel cracks and rear pillar to cross sill separation in severe usage applications (off-road(4x4)).
Load Floor-Mounted Equipment Installation
Equipment such as fuel tanks, generators, water tanks, etc. should be secured to the load floor with the maximum possible bearing area, particularly at bolted attachments to the floor. 3/4 inch thick plywood has been found to be one of the best materials to distribute loads effectively to the ribbed pick-up box load floor. Sufficient bearing area should be provided under the load floor as well, at local attaching through-bolts. Again, 3/4 inch plywood pads with large steel washers will provide this bearing area. When a piece of equipment is secured to the load floor it should not also be secured to the box sides. All attachments to the load floor should be made well inboard of the
Figure 11:

floorpan/bodyside inner panel downstanding flange coach joint. A good example of the application of these guidelines for floor-mounted equipment is the previously-described floor-mounted toolbox installation in Figure 11. Whenever any floormounted equipment installation is made, extreme caution should be exercised to avoid severing fuel lines, brake tubes, or drilling holes in fuel tanks directly under the load floor.
Carrying Rack Installation
Closed-section tubular steel carrying racks for pipes, ladders, etc. which mount to the pick-up box stake pockets or body sides are not recommended in
severe vehicle usage applications. If a carrying rack must be used in a severe vehicle (e.g. off-road (4x4)) service application, then it is preferable to use angle section (vs. tubular) members to construct the rack and mount the rack to the load floor using the attachment guidelines previously outlined.
OTHER APPLICABLE ARTICLES: Supersedes 81-9-17 WARRANTY STATUS "INFORMATION ONLY"